Agencement mobilier intérieur - Vue état projeté - Chantier réceptionné
Agencement mobilier intérieur - Vue en plan état actuel - Chantier réceptionné
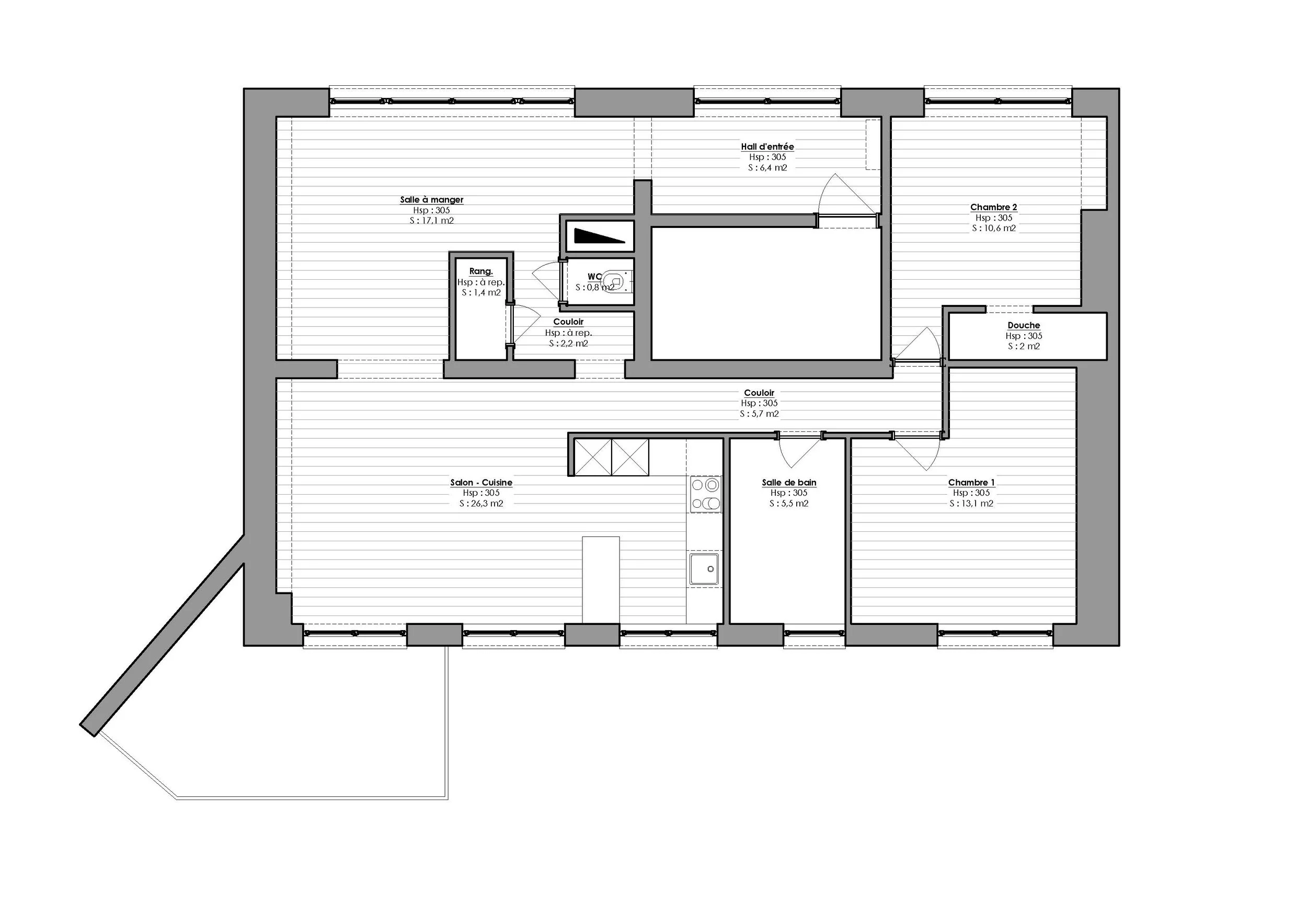
Agencement mobilier intérieur - Vue en plan état projeté - Chantier réceptionné